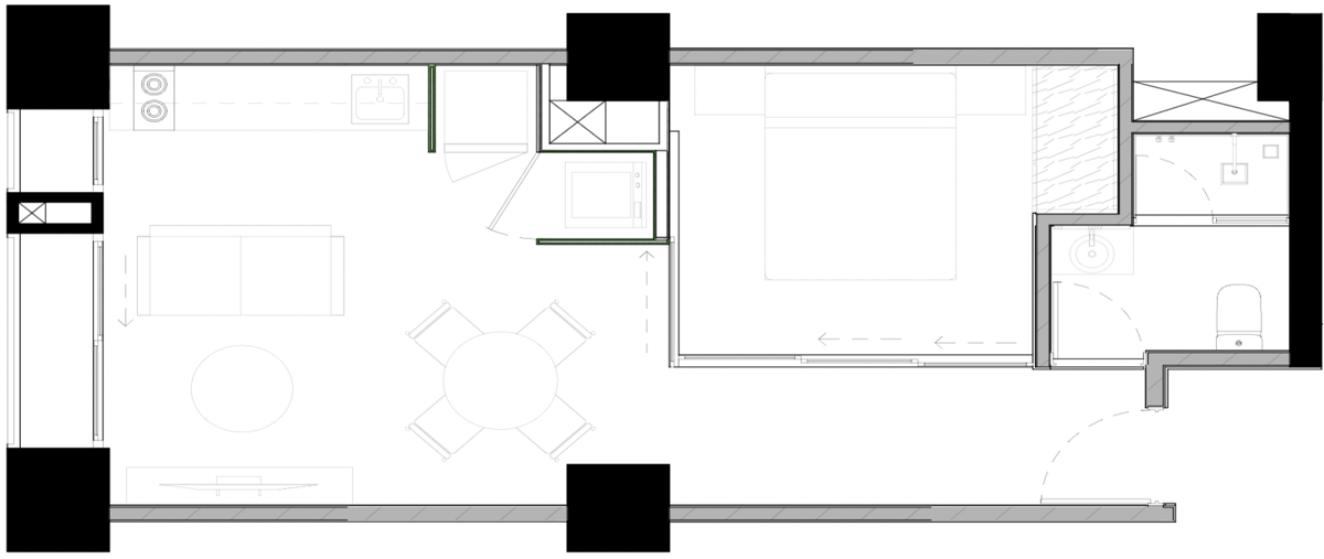
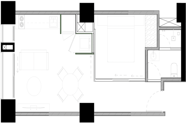
- 1 Recámara
- 1 Baño
- 45 m2
- Casas
- Departamentos
- Top 5 estados en venta
- Top 5 ciudades en venta
- Más propiedades
- Top 5 estados en venta
- Top 5 ciudades en venta
- Propiedades tipo Infonavit
Novedades
Loading...




Ubicación privilegiada en la colonia tabacalera, cdmx plusvalía garantizada ¡promoción por tiempo limitado! características: 42 m² excelente distribución y acabados modernos precio especial: $3,650,00...
Mostrar másCUENTA CATASTRAL
01125701USO DE SUELO
Habitacional MixtoSUPERFICIE DE TERRENO
190.0 m²ÁREA CONSTRUIDA
3806 m²MÁXIMO DE NIVELES
25% MÍNIMO DE ÁREA LIBRE
20SUPERFICIE MÁXIMA DE CONSTRUCCIÓN
3806 m²Busca en los mejores lugares