Terreno comercial
Venta
$1,007,500 USD
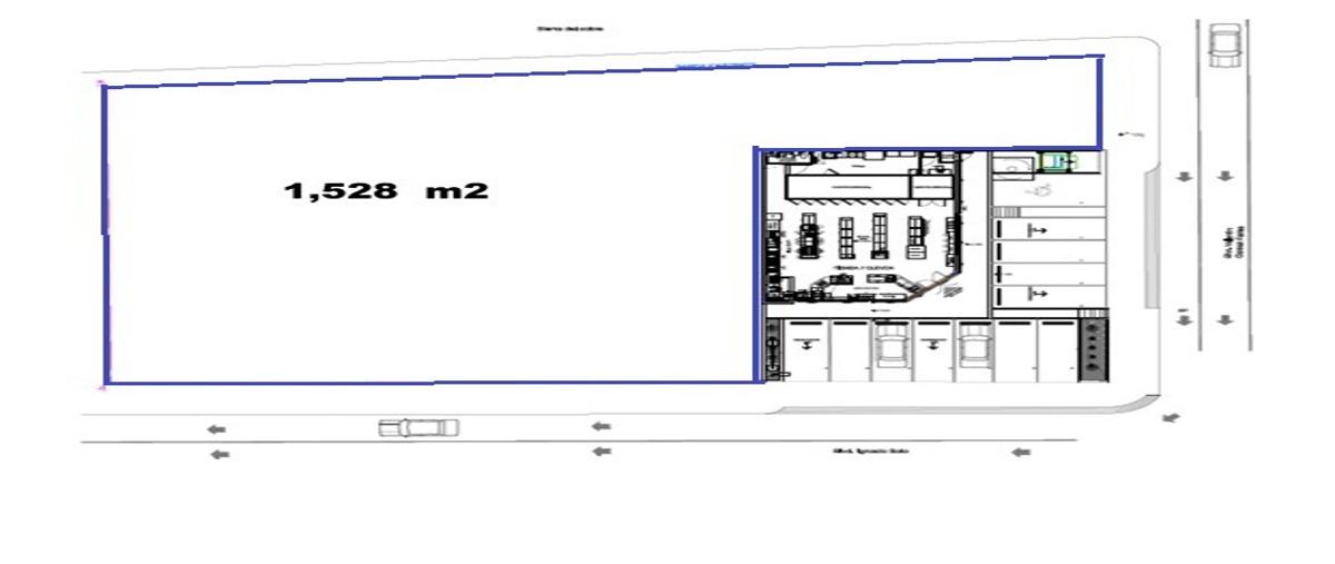
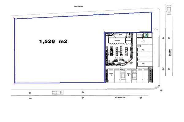
- 1550 m2






Terreno en venta en hermosillo super comercial de 1,528 m2 en área super comercial sobre el blvd. ignacio soto entre blvd. morelos y blvd. gómez farías.- excelente ubicación precio de venta $1,000,00...
Mostrar másBusca en los mejores lugares