Local
Renta
$13,500 MXN
- 74 m2






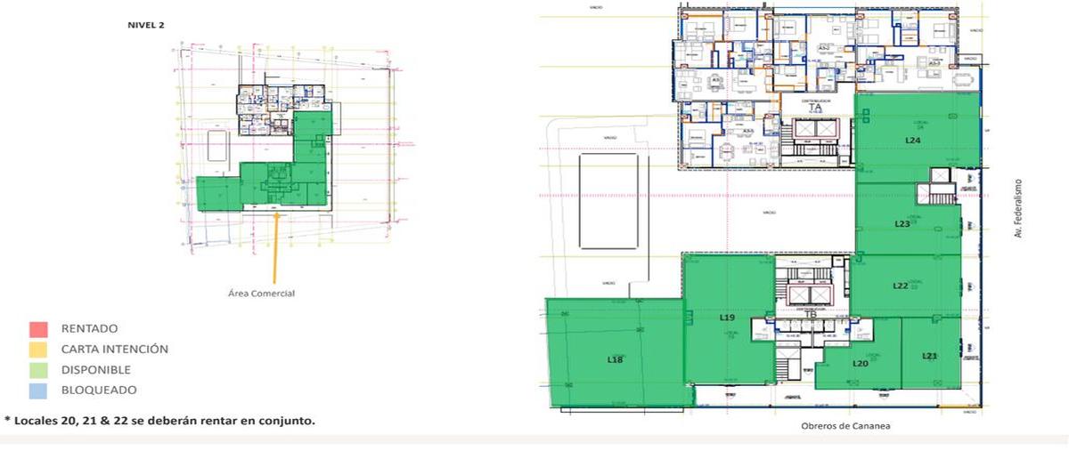
Wiggot: pd9xguk proyecto comercial: • superficie de 1,969 m2 totales • 24 locales comerciales • dividido en 3 niveles: - planta baja- servicios - primer nivel - servicios - segundo nivel • estacion...
Mostrar másBusca en los mejores lugares