Terreno habitacional
Venta
$2,772,000 MXN
- 252 m2




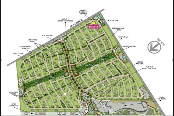
Dimensiones:terreno rectangular de 245 mt2:•dos frentes que se abren a un espacioso jardín, de 10 mts y 23 mts. •frente de acceso con una longitud de 10 mts.•colindancia vecinos, abarcando...
Mostrar másBusca en los mejores lugares