- Casas
- Departamentos
- Top 5 estados en venta
- Top 5 ciudades en venta
- Más propiedades
- Top 5 estados en venta
- Top 5 ciudades en venta
- Propiedades tipo Infonavit
Novedades
Loading...




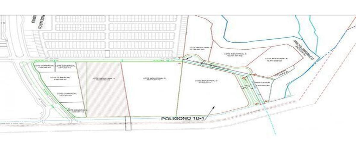
Terreno industrial en venta plano, en colonia valle de santa elena, sobre carretera agua fría; ideal para un parque de bodegas. terreno: 30,143 m2 frente: 109 m2 fondo: 256 m2 precio por m...
Mostrar másBusca en los mejores lugares