Terreno comercial disponible en venta en FERNANDO CUEN #S/N, Colonia PEMEX, C.P. 80180

Municipio Culiacán, Sinaloa

Ver Ubicación

$3,000,000 MXN

Image propiedad
+2
Image propiedadImage propiedad
+1
Image propiedad

Descripción de terreno comercial en venta

Oportunidad de terreno buena ubicacion

Características principales de terreno comercial

ID DEL INMUEBLE
29403285
30 años
Edad del inmueble
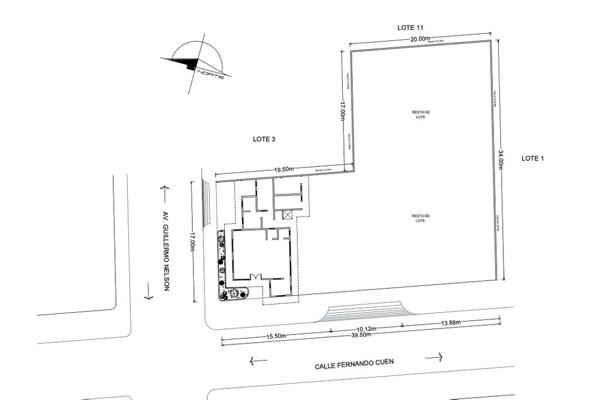
1011 m2
ÁREA TERRENO
Regular
Forma