Terreno industrial disponible en venta en Carretera a Colotlán km 10, Colonia Santa Isabel, C.P. 45110
Municipio Zapopan, Jalisco
Ver Ubicación
$10,661,200 MXN
+9
+8
+7
+6
+5
Descripción de terreno industrial en venta
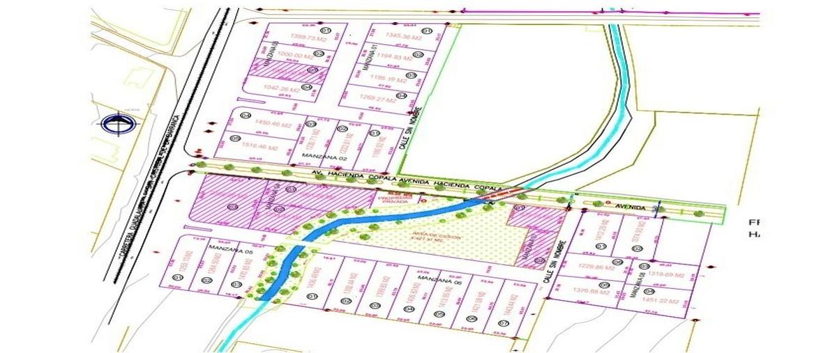
Lotes en parque industrial ubicado en km 10 a bordo de carretera a colotlán, zona "el taray", municipio de zapopan, jalisco. con infraestructura de alta calidad, barda perimetral, seguridad 24/7, cal...
Mostrar másCaracterísticas principales de terreno industrial
ID DEL INMUEBLE
29128849
0
BAÑOS
Nuevo
Edad del inmueble
9692 m2
ÁREA TERRENO
Busca en los mejores lugares
Terrenos industriales en Venta en colonias de Santa Isabel
Terrenos industriales en venta en Circunvalación Américas
Terrenos industriales en venta en Nuevo México
Terrenos industriales en venta en Jardines Del Valle
Terrenos industriales en venta en Los Colomos
Terrenos industriales en venta en Villa de los Colomos
Terrenos industriales en venta en Indígena San Juan de Ocotan
Terrenos industriales en venta en La Mojonera
Terrenos industriales en venta en Vallarta Universidad
Terrenos industriales en venta en Lomas Del Bosque
Terrenos industriales en venta en Jardines de Nuevo México
Terrenos industriales en venta en Hogares de Nuevo México
Terrenos industriales en venta en Girasoles Elite
Terrenos industriales en venta en Militar Zapopan
Inmuebles en Santa Isabel
Casas en venta en Santa Isabel
Departamentos en venta en Santa Isabel
Terrenos Habitacionales en venta en Santa Isabel
Casas en condominio en venta en Santa Isabel